АРХІТЕКТУРА
ДИЗАЙН ІНТЕР'ЄРУ
ПРО НАС
КОНТАКТИ
АРХІТЕКТУРА
ДИЗАЙН ІНТЕР'ЄРУ
ПРО НАС
КОНТАКТИ
HURY + virtual tour
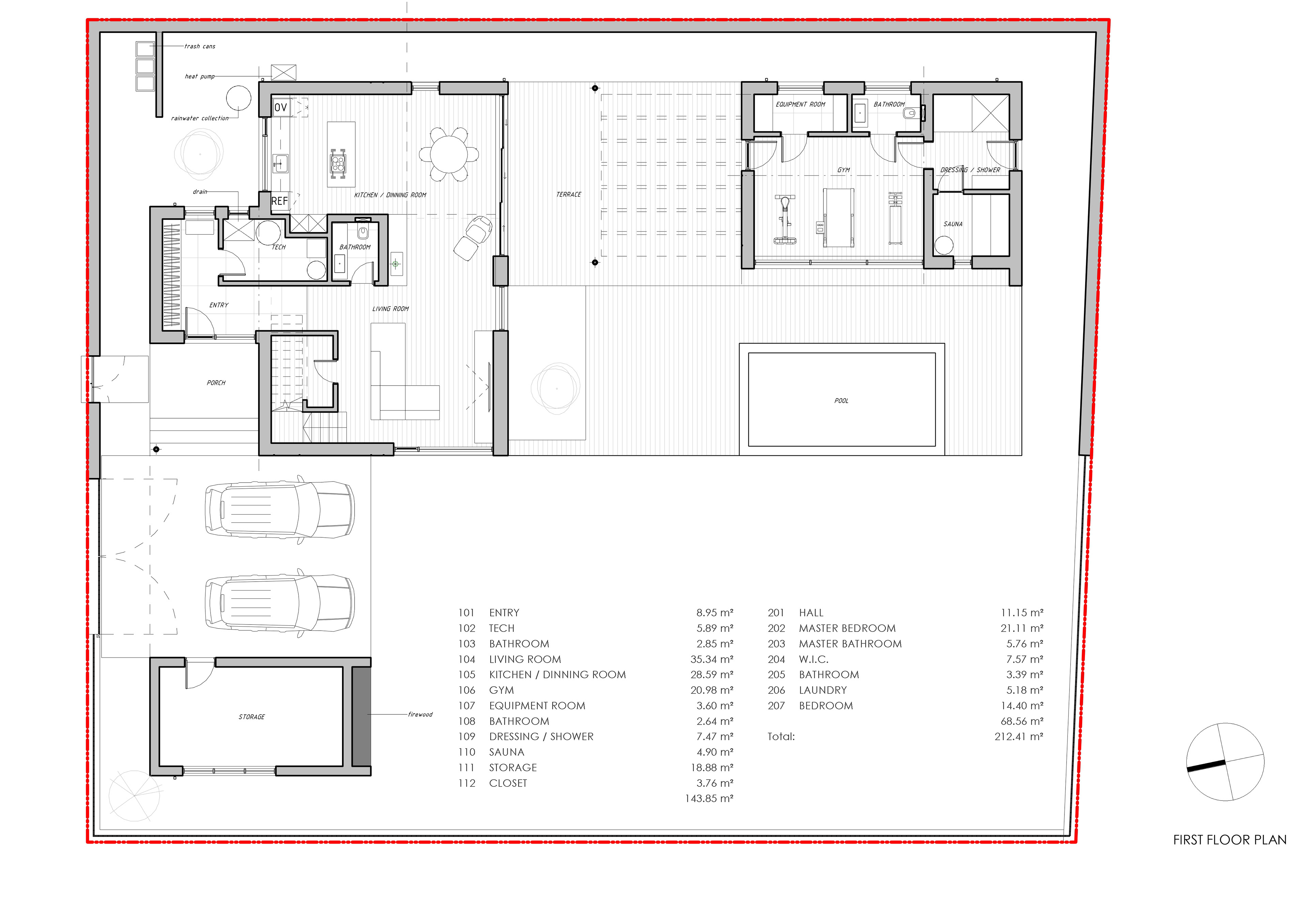
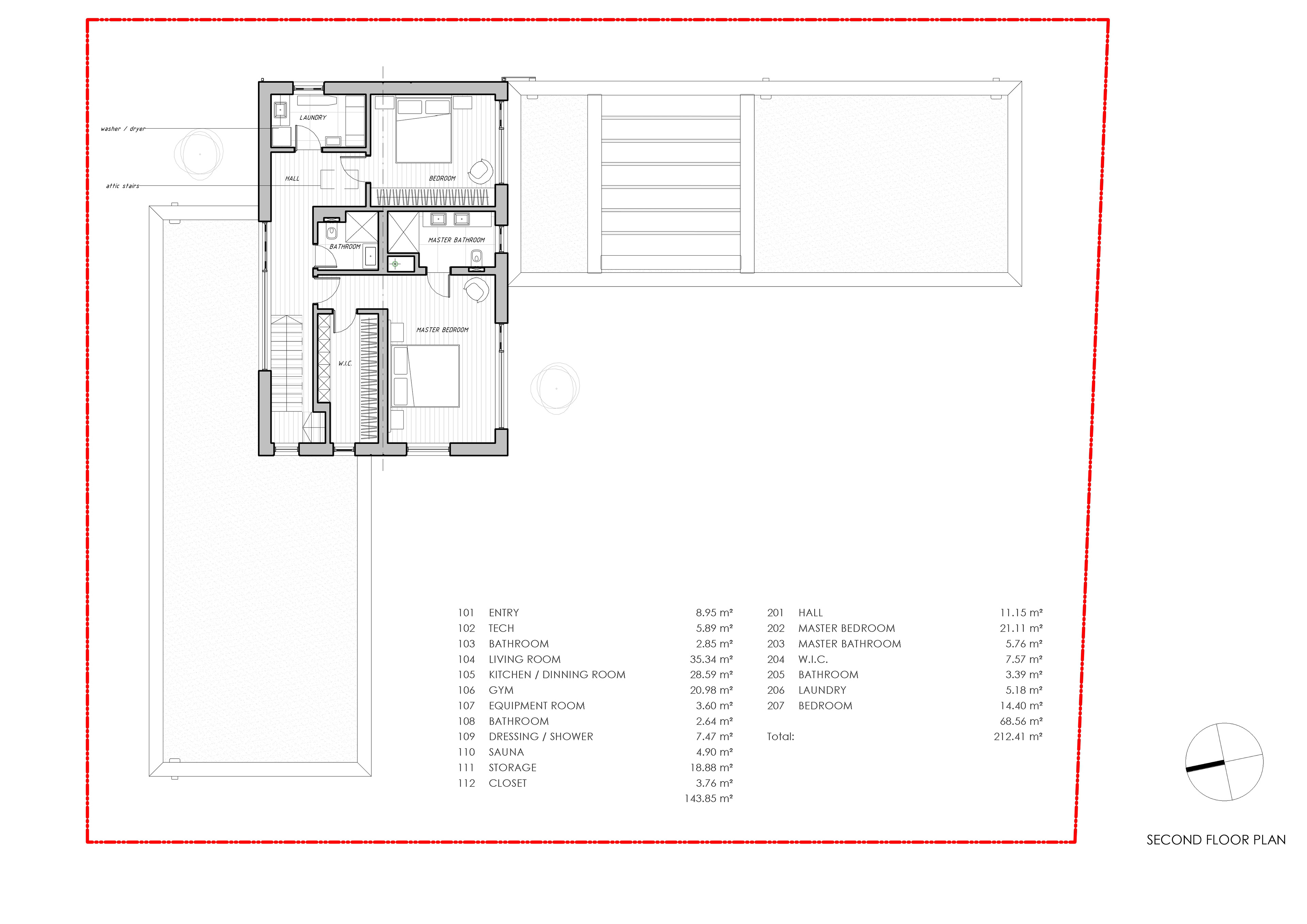
Project name: HURY
Project year: 2023
Area: 212.4 qm
Location: Czech Republic, Hury
Description: The concept involves the production of a house from modules with subsequent assembly on the site
Link to the virtual tour
ІНШІ ПРОЕКТИ
HELIOS
2018
NOVIY MIZUN
2023
PLG
2020
VNC
2019
WATERFRONT
2020
HI-J 2.0
2022
OLYMED ROOF
2021
READY - BRVR
2017
JAGUAR & LAND ROVER
2019
MDL
2019
↑
Back to Top